Springvale Road, Mulgrave
Property Description
Direct Care Assistance are collaborating with the SDA Provider Connected Living Solutions for this bright and vibrant 3 Bedroom SIL/SDA. This house is in a well-connected part of the inner-Southeast, located close to shops, parks, public transport and essential services. This house offers an accessible living opportunity for someone wanting to live somewhere they are supported by highly trained staff and perfect for anyone looking for a caring and motivated team in a brand-new, centrally located SIL/SDA.
Support Level
Within this House, we can support:
Accommodation Type: SIL, SDA & MTA
Support Ratio: 1:3, Sleepover & Active Overnight (if funded for Active Overnight Support)
Local Area
Housing Provider:
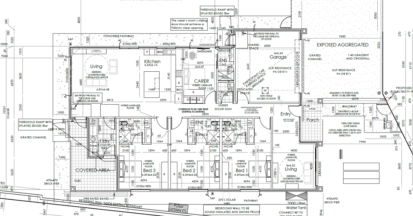
Key Features
- Number of Bedrooms: 3
- Number of Bathrooms: 3
- OOA Room: Yes
- Number of Vacancies: 3
- SDA Design Category: IL/FA/HPS
- Region: Melbourne Southeast
- Available: Q1 2026

